中央区長潟1丁目B棟 新築戸建

3,280万円

管理費等 -

新潟県新潟市中央区長潟1丁目

上越新幹線「新潟」駅徒歩32分

価格
3,280万円
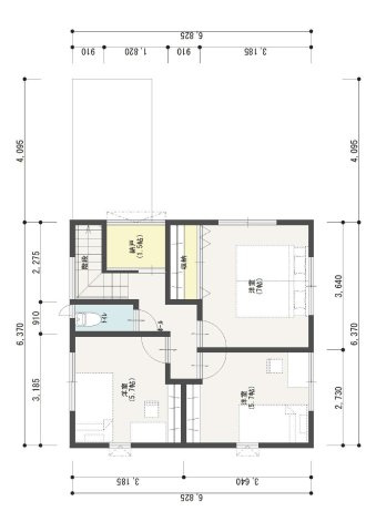
間取り
3LDK+S(納戸)
土地面積
102.39㎡
所在地
新潟県新潟市中央区長潟1丁目
交通

上越新幹線新潟」駅 徒歩32分

建物面積
92.14㎡
築年月
2026年5月(予定)

物件の特徴

  • バストイレ別

  • 室内洗濯機置場

  • TVモニタ付きインターホン

  • カウンターキッチン

  • 独立洗面台

JR上越新幹線始発駅の新潟駅まで徒歩30分
◇立地重視の方に!
◇収納充実
◇駐車場2台
◇造先家具付

徒歩27分の距離に新潟市立山潟中学校があるのも魅力。追い焚き機能付きですので、前日の残り湯を再利用できます。アレルギーも花粉も24時間換気システムでオールブロックすることができます。洗面台にこだわる方にもご満足いただける設計になっております。新潟市中央区の上越新幹線新潟周辺には、マイホームに相応しい一戸建て情報が豊富です。引っ越しをお考えの方は、お気軽にご連絡ください。

基本情報

販売戸数
1戸
総戸数
-
間取り / 詳細
3LDK+S(納戸)
LDK 16.1帖 1室/洋室 5.7帖 1室/洋室 5.7帖 1室/洋室 7.0帖 1室/S 1.5帖 1室
向き
建物面積(坪数)
92.14㎡(27.87坪)
土地面積(坪数)
102.39㎡(30.97坪)
建ぺい率 /
容積率
60%/200%
築年月
2026年5月(予定)
駐車場 /
月額料金
有(2台) 0円
土地権利
所有権
土地
(敷金 / 保証金)
- / -
構造・工法
木造2階建
傾斜地部分面積
-
路地状敷地
-
私道負担面積
-
セットバック
高圧線下面積
-
施工会社
-
用途地域
第一種中高層住居専用
地目 / 地勢
宅地 / 平坦
接道状況
一方(東 公道 5.6m)
国土法届出要否
不要
都市計画
市街化区域
総区画数 /
販売区画数
-/1区画
現況
未完成
その他
法令上の制限
-
取引態様
一般媒介
引渡し
2026年4月下旬
取引条件の
有効期限
2026年03月19日

設備条件

設備条件
  • 閑静な住宅地 / ファミリー向け / 室内洗濯機置場 / フローリング / 都市ガス / 公営水道 / 公共下水 / 24時間換気システム / 電気有 / 照明器具付き / 駐車2台可 / IHクッキングヒーター / コンロ2口以上 / 食器洗い乾燥機 / システムキッチン / コンロ3口 / カウンターキッチン / バス・トイレ別 / 追焚機能浴室 / 温水洗浄便座 / 洗面台 / トイレ2ヶ所 / 浴室1坪以上 / 独立洗面台 / TVモニタ付インターホン / 複層ガラス
設備(その他)
    -

その他

物件番号
99920035
建築確認番号
第NK第25本02045号号
情報更新日
2026年03月05日
次回更新予定日
2026年03月19日
備考
新潟市立山潟小学校が徒歩8分のところにあり、お子様の通学も便利です。住み心地もいい3,280万円の物件はこちらです。こちらの物件は南向きです。TVインターホンで、モニターから来訪者が確認できます。にいがたの不動産 地産地消は、様々なご希望に対応いたします。0120-72-6039やinfo@niigata-chisanchisho.comから、条件をお申し付け下さい。

周辺施設

  • 新潟デザイン専門学校の画像

    専門学校

    新潟デザイン専門学校

    144m(2分)

  • 新潟工科専門学校の画像

    専門学校

    新潟工科専門学校

    145m(2分)

  • アップルスポーツカレッジの画像

    専門学校

    アップルスポーツカレッジ

    276m(4分)

  • 中華そば 石黒の画像

    ラーメン

    中華そば 石黒

    329m(5分)

  • 湖桜保育園の画像

    保育園

    湖桜保育園

    481m(7分)

  • とんかつ政ちゃん姥ケ山店の画像

    その他

    とんかつ政ちゃん姥ケ山店

    565m(8分)

  • 新潟市立山潟小学校の画像

    小学校

    新潟市立山潟小学校

    598m(8分)

  • セブンイレブン 新潟弁天橋店の画像

    コンビニエンスストア

    セブンイレブン 新潟弁天橋店

    616m(8分)

  • 新潟信用金庫ながた支店の画像

    銀行

    新潟信用金庫ながた支店

    746m(10分)

  • ウエルシア新潟弁天橋通店の画像

    ドラッグストア

    ウエルシア新潟弁天橋通店

    772m(10分)

  • キューピット 長潟店の画像

    スーパー

    キューピット 長潟店

    840m(11分)

  • 私立開志専門職大学紫竹山キャンパスの画像

    大学

    私立開志専門職大学紫竹山キャンパス

    890m(12分)

  • 新潟市立高志中等教育学校の画像

    高校

    新潟市立高志中等教育学校

    975m(13分)

  • 焼肉きんぐ新潟駅南店の画像

    焼肉

    焼肉きんぐ新潟駅南店

    985m(13分)

  • 国際メディカル専門学校の画像

    専門学校

    国際メディカル専門学校

    1012m(13分)

  • 新潟市立山潟中学校の画像

    中学校

    新潟市立山潟中学校

    2095m(27分)

中央区長潟1丁目B棟 新築戸建

中央区長潟1丁目B棟 新築戸建

3,280万円

-

3LDK+S(納戸)(92.14㎡)

お気軽にお問い合わせください

LINEからお問い合わせ 無料お問い合わせ

にいがたの不動産

0120-72-6039

9:00~18:00

(休:年中無休)