東区竹尾4丁目 新築戸建 

2,980万円

管理費等 -

新潟県新潟市東区竹尾4丁目2-33

白新線「東新潟」駅徒歩27分

価格
2,980万円
間取り
3LDK
土地面積
102.50㎡
所在地
新潟県新潟市東区竹尾4丁目2-33
交通

白新線東新潟」駅 徒歩27分

建物面積
113.85㎡
築年月
2026年7月(予定)

物件の特徴

  • バストイレ別

  • 室内洗濯機置場

  • TVモニタ付きインターホン

  • カウンターキッチン

  • 独立洗面台

「東区竹尾4丁目 新築戸建」:新潟市東区エリアの新居にピッタリ。通学区域内の小学校は新潟市立牡丹山小学校で徒歩7分です。機能的で使いやすいシステムキッチン付きなので、お料理を楽しめます。不動産について何かご不明な点などがございましたら、新潟市東区に強い当社スタッフへとお問い合わせください。しっかりとお応え致します。

【 実用的で快適な間取り】
リビングを広めに設け、家族が集まりやすいようなレイアウトや、収納スペースを多く確保することで、生活がしやすいよう設計されています。
家族での暮らしを想定した使い勝手の良い間取りが魅力です。

【高品質な建材と細部までこだわったデザイン】
究工務店は、耐久性の高い建材を使用し、細部までこだわったデザインで上質な仕上がりの住宅を提供しています。
外観は周囲の街並みにも馴染むような美しい佇まいです。
内装はアクセントクロス次第でイメージが変化します。

【最新の設備とエコ対応】
家事動線を考慮したキッチンや浴室、トイレなどの設備も充実しており最新設備を取り入れることで、日々の暮らしがより快適になります。

【購入後も安心のアフターサポート】
地域に密着した工務店として、購入後のアフターサポートがしっかりしている点も魅力です。定期点検やメンテナンスの案内があり、何か不具合が生じた際にも迅速に対応してくれるため、長く安心して住み続けられるサポート体制が整っています。

【地域密着型ならではの親身な対応】
究工務店は新潟地域に根差した工務店で、地元の住まい手のニーズやライフスタイルに理解が深いです。
契約から施工、引き渡し後まで、親身になって対応してくれると評判です。
地域特有の生活習への配慮が行き届いた家づくりが、地元の人に信頼されています。

基本情報

販売戸数
1戸
総戸数
-
間取り / 詳細
3LDK
LDK 17.9帖 1室/洋室 6.8帖 1室/洋室 6.0帖 1室/洋室 5.5帖 1室/1室
向き
建物面積(坪数)
113.85㎡(34.43坪)
土地面積(坪数)
102.50㎡(31.00坪)
建ぺい率 /
容積率
60%/160%
築年月
2026年7月(予定)
駐車場 /
月額料金
有(2台) 0円
土地権利
所有権
土地
(敷金 / 保証金)
- / -
構造・工法
木造2階建
傾斜地部分面積
-
路地状敷地
-
私道負担面積
-
セットバック
高圧線下面積
-
施工会社
-
用途地域
第一種中高層住居専用
地目 / 地勢
宅地 / 平坦
接道状況
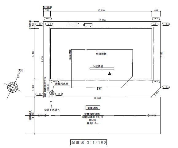
一方(南 私道 4.0m 間口 11.6m)
国土法届出要否
不要
都市計画
市街化区域
総区画数 /
販売区画数
-/1区画
現況
未完成
その他
法令上の制限
景観法/日影制限有
取引態様
一般媒介
引渡し
相談
取引条件の
有効期限
2026年01月24日

設備条件

設備条件
  • 閑静な住宅地 / カードキー / ファミリー向け / 室内洗濯機置場 / フローリング / バルコニー / 公営水道 / 公共下水 / 24時間換気システム / 電気有 / 照明器具付き / 駐車2台可 / コンロ2口以上 / 食器洗い乾燥機 / システムキッチン / コンロ3口 / カウンターキッチン / バス・トイレ別 / 追焚機能浴室 / 温水洗浄便座 / 洗面台 / トイレ2ヶ所 / 浴室1坪以上 / 独立洗面台 / ウォークインシューズクロゼット / TVモニタ付インターホン / 複層ガラス
設備(その他)
    -

その他

物件番号
98284031
建築確認番号
第NK第25本01464号号
情報更新日
2026年01月10日
次回更新予定日
2026年01月24日
備考
【ナチュラルな木の温もりがやさしい】
フローリングや家具に使われた明るい木目が、シンプルな空間にぬくもりを添えています。
ホワイトを基調とした内装との相性も抜群で、清潔感とやさしさが同時に感じられます。

【キッチンと一体化した家族時間】
リビング・ダイニング・キッチンが一体化しているので、料理をしながら家族と自然に会話ができる間取り。小さなお子さんの様子を見ながら家事ができるのも安心です。

新潟市で新築建売住宅の購入を検討している方には、究工務店様は地域密着ならではの信頼性と、デザイン・機能性の両方を兼ね備えた住まいを提供してくれるパートナーです

周辺施設

  • ザ・ダイソー 新潟竹尾店の画像

    その他

    ザ・ダイソー 新潟竹尾店

    318m(4分)

  • コメリPRO(プロ) 牡丹山店の画像

    ホームセンター

    コメリPRO(プロ) 牡丹山店

    473m(6分)

  • ココカラファイン 牡丹山店の画像

    ドラッグストア

    ココカラファイン 牡丹山店

    484m(7分)

  • ローソン 新潟牡丹山一丁目店の画像

    コンビニエンスストア

    ローソン 新潟牡丹山一丁目店

    508m(7分)

  • 新潟市立木戸中学校の画像

    中学校

    新潟市立木戸中学校

    800m(10分)

  • 新潟牡丹山郵便局の画像

    その他

    新潟牡丹山郵便局

    999m(13分)

  • 第四北越銀行木戸支店の画像

    銀行

    第四北越銀行木戸支店

    1040m(13分)

支払いシミュレーション

月々の支払額
9.6
購入希望物件価格
万円
頭金
万円
金利
%
返済額(ボーナス1回分)
万円
返済期間

※ボーナスは自動で年2回分で計算されます。

東区竹尾4丁目 新築戸建 

東区竹尾4丁目 新築戸建 

2,980万円

-

3LDK(113.85㎡)

お気軽にお問い合わせください

LINEからお問い合わせ 無料お問い合わせ

にいがたの不動産

0120-72-6039

9:00~18:00

(休:年中無休)